Kiến trúc sư giữ nguyên kết cấu 3 phòng ngủ, chủ yếu thay đổi nội thất và cách bài trí để mang đến sự tiện nghi cho căn hộ.

Căn hộ nằm trong khu chung cư được xây dựng từ năm 1980 ở thành phố Đài Trung, Đài Loan, phút chốc 'lột xác' thành không gian sống hiện đại nhờ nội thất đồng bộ và cao cấp. Kiến trúc sư bố trí kệ để đồ bằng gỗ ngay lối vào để tăng thêm sự thú vị cho bức tường vốn đơn điệu và nhàm chán.

Toàn bộ gạch lát nền màu trắng đơn sắc được thay thế bằng sàn gỗ, tạo cảm giác ấm cúng và thoải mái cho căn hộ.

Bên mép cửa sổ phòng khách, một tủ chứa đồ kết hợp ghế ngồi được thêm vào. Đối diện sofa màu ghi là hệ thống bàn dài ốp tường, kệ trang trí màu đen.

Phía cuối bộ sofa, kiến trúc sư cho đặt chiếc bàn làm việc nhỏ với giá để đồ ngay tầm với. Bức tường được sơn màu xanh làm nổi yếu tố thiết kế và hệ thống đèn trần mang ánh sáng tới quanh khu vực ghế ngồi.

Hốc tường trống trơn của căn hộ nguyên bản được lấp đầy bằng tủ gỗ và kệ trưng bày.

Khu vực hành lang kết nối phòng khách với các phòng khác của căn hộ được tận dụng để đặt chiếc bàn ăn dành cho 4 người.

Những mảng xanh da trời và xanh nõn chuối trong căn bếp được đổi lại bằng gạch hoa trang trí, ốp gỗ.

Trắng là màu chủ đạo trong phòng ngủ nên toàn bộ hệ thống tủ, bàn làm việc, ga trải giường đều mang màu sắc này. Bên cạnh giường là phòng tắm, được bảo đảm sự riêng tư bằng cửa trượt gỗ.

Nhà tắm cũ kỹ đúng phong cách những năm 1980 được đổi mới hoàn toàn bằng nội thất hiện đại. Kiến trúc sư cho lắp tấm kính cạnh bồn tắm để giữ khu vực còn lại luôn khô ráo; thay thế bồn rửa cũ bằng bệ mới có kết hợp chậu rửa và mặt bàn đặt mỹ phẩm.

Bồn tắm trong khu vệ sinh dành cho khách được phá bỏ, thay vào đó là vòi hoa sen, phía dưới lát gạch tối màu. Chiếc bồn rửa mới cũng được lắp đặt để thay thế cho chiếc cũ, có kiểu dáng hiện đại và tiện ích hơn.

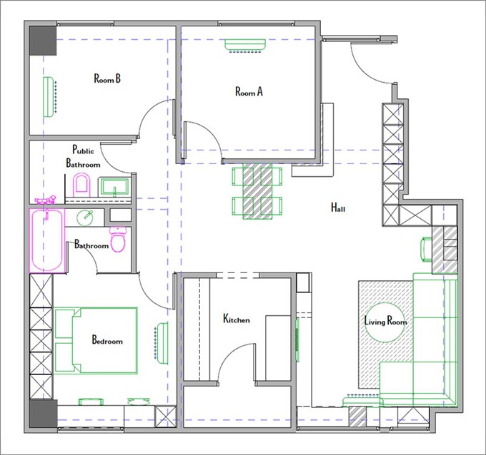
Bản vẽ của căn hộ.
Theo CTP/Ngôi Sao
No comments:
Post a Comment